Previous | Next | Discuss :: Free Advice (General Feng Shui)


Topic: Ba gua placement, 1 Attachments
Conf: Discuss :: Free Advice (General Feng Shui), Msg: 11190
From: Anonymous
Date: 5/13/2002 08:54 AM

Dear Cecil,

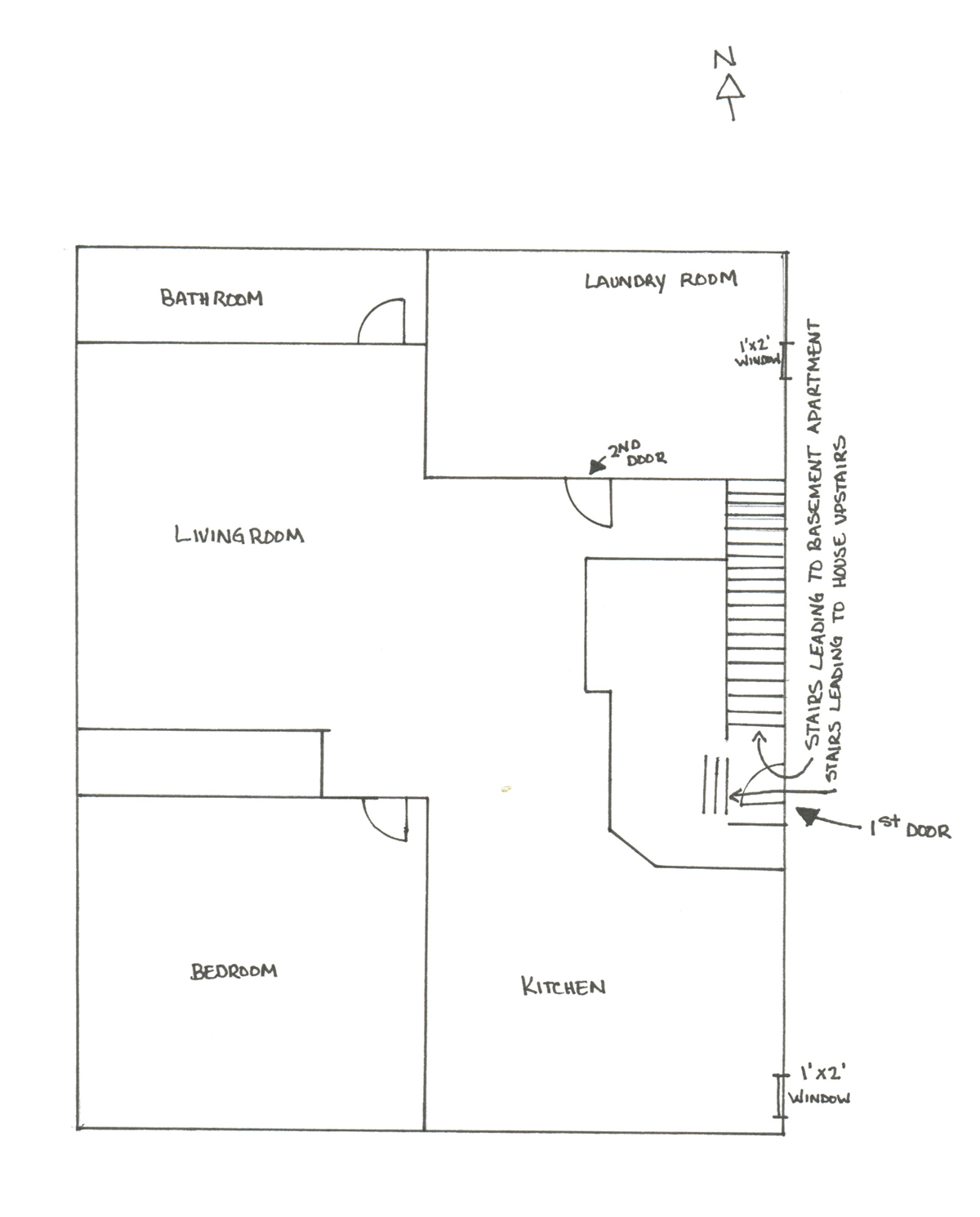
Enclosed is a drawing of my basement apartment. There's two doors leading to the apartment. The second door is what I would consider the front door but it's not outside of the house. I want to place the ba gua on the front door but you've mentioned in the advice column to not place a ba gua in the inside of the house/place. Should I place the ba gua on the first door which leads to the exterior of the house or the second door which is indoor and leads to the basement apartment? Thanks for your ongoing help~

Click to open!BasementApartment.JPG
basement apartment layout (284,276 bytes)

Copyright 1996-onwards Geomancy.Net, Cecil & Robert Lee. All Rights Reserved.

International Copyright & Intellectual Property Rights Notice
All messages posted TO THIS SITE which includes this forum and other contents made accessable by us to the public cannot be copied; reproduced; recompiled; stored in a retrieval system; or transmitted, in any form or by any means; electronic; mechanical; photocopying; recording; or otherwise. - Learn more

Please kindly contact us at support@geomancy.net. if you should encounter any breach of Copyright and Intellectual Property rights. Thank you in advance!

 

 

Back to Feng Shui at Geomancy.Net

 [ Site Search | Forum Search | Picture Search | Site Map ]

 

Help Desk: (65) 9785-3171

 

 

 

Highlights

Extend your learning with Master Cecil Lee's Applied Feng Shui Made Easy Book.

" Real People, Real Life, Real Situation " - Learn from thousands of actual case studies at our popular Free Advice Forum.

" Worry-Free Professional Feng Shui Services " - from the authors of Geomancy.Net

[ Award & Accolades ]
 

Site Navigation

Home
   Feng Shui Freebies
   Feng Shui Resources
     Fun with Feng Shui
     Major FS Theories
     Feng Shui Articles
     Feng Shui Advice
     FS Reference
     Slide Show
     Calendar of Events
     Educational Polls
     Site Review
     Yearly Forecast
     Chinese Horoscope
     Popular Topic
   Picture Resources
   Chinese Horoscope
   Personalised Reports
   e-Bookstore
   Feng Shui Courses
   Products & Services
   Consultation Services
   Shop @ Geomancy
   Students Services
   Events @ Geomancy
   Webmaster
   FAQ / Help
   About Us
   Contact Us
   Members Area
   Ask Expert Forum
   Search Website
   Site Tools
   Others Areas
   Live Chat
   Recommend Us
   Site Map